Descripción
El Edifico 3dF adquiere así la condición de un edificio de usos mixtos [Comercio, Oficinas, Cocheras, Departamentos, Amenities], buscando maximizar el aprovechamiento del lote a partir de balancear la superficie cubierta con las condiciones óptimas de iluminación y ventilación requeridas por cada unidad funcional.
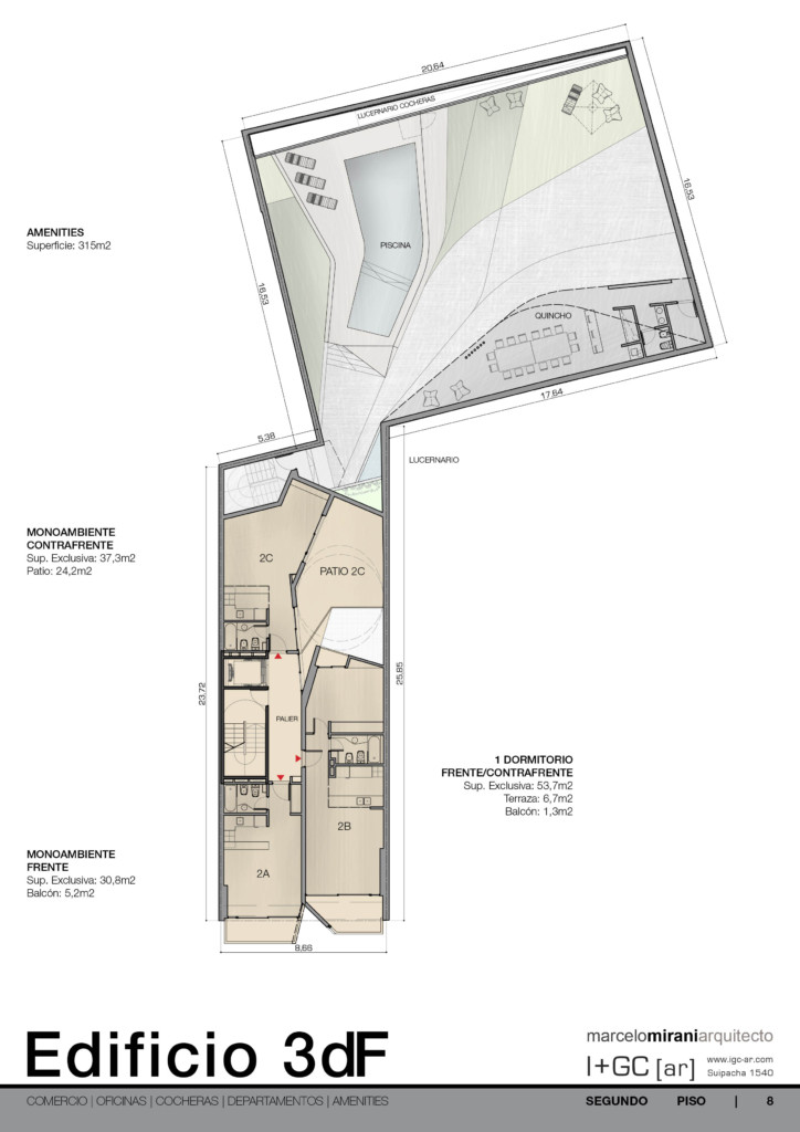
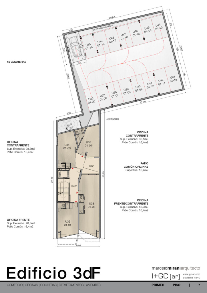
Como primera estrategia, el programa se fragmenta en 2 grandes conjuntos, ambos con accesos autónomos, en concordancia con la lógica geométrica del terreno. Dicha división permite una independencia proyectual a nivel funcional y estructural (evitando tediosas transferencias de cargas y/o subordinaciones programáticas a soluciones estructurales no compatibles). En el frente se ubica el comercio (en contacto directo con la calle), las oficinas, (en planta baja y primer piso) y los departamentos (de segundo a sexto piso). En el fondo, como respuesta a la creciente demanda de la zona, se ubican 45 cocheras (divididas en 3 niveles con iluminación y ventilación natural) y por encima de ellas, 315m2 de amenities, recuperando la condición inicial de pulmón de la manzana.
Los departamentos, asimismo, presentan distintas tipologías: monoambientes, 1 y 2 dormitorios, acentuando el entendimiento del edificio de usos múltiples como una verdadera comunidad con demandas diferenciadas.
El proyecto se estructura geométricamente a partir del patio mínimo de 4m. de diámetro, requerido en el contrafrente, utilizando las tangentes al mismo como como línea de conexión que vincula ambos cuerpos del proyecto. A su vez, se genera una incisión en el contrafrente que separa las unidades, mejorando la privacidad, como así también produce el ingreso de luz natural a los palieres de cada piso. Por último, la misma operación se realiza en el frente, independizando los balcones y dotando a ambos de luz del Este.
Disponibilidad
Cocheras
Oficinas
Departamentos: Monoambientes, 1 y 2 dormitorios.
Ubicación
3 de Febrero 2756 – Rosario, Argentina
Tipo de Compra y Formas de Pago
Tipo de Compra: Edificio Terminado
Forma de Pago: Pago contado y/o Financiado:Anticipo (30%) Saldo (%50) Cuotas (18)
Fecha Estimada de Entrega: Abril 2017


































